纽琳克生产KLM5505G-CN-PCB系列是一款5口全千兆非网管工业以太网交换机,产品安全、自主、可控,元器件国产化率100%。支持5个10/100/1000M自适应电口。可以在-40℃-+85℃的极端环境温度中正常工作,满足了不同工业应用要求,以及确保了恶劣工业环境中快速和可靠的数据传输。工业级标准的电源,使产品对环境适应性更强。使用嵌入式定位孔安装方式,满足高带宽业务传输需求的电力,视频监控,工厂自动化,石油化工等工业应用领域。支持DC12-36V双路冗余电源供电。RJ45接口自动流速控制,全/半双工模式、MDI/MDI-X自动侦测。满足各种工业通信现场
支持5路千兆电口,产品安全、自主、可控,元器件国产化率100%。采用裸板定位孔安装方式,能满足不同应用现场的需求。
低功耗、-40℃~+75℃宽温宽压设计,通过符合行业标准的严格测试,能够适应对EMC有严酷要求的工业现场环境,产品符合FCC、CE标准,根据工业4级要求设计。
广泛应用于智能电网、轨道交通、智慧城市、平安城市、新能源、智能制造等工业领域。
| 型号 | KLM5505G-CN |
| 接口 | 电口数量:5个10/100/1000M自适应以太网接口 |
| 交换特性 |
背板带宽:14Gbps 包转发速率:10.5Mpps 包缓存区:2Mbit MAC地址表:支持4K个MAC地址 Jumbo巨型帧:支持9K巨型帧 |
| 电源 |
输入电压: 直流机型:DC12~36V,双电源冗余。 接口类型:工业凤凰端子4芯5.08间距 保护:支持电源防反接保护/过载保护 最大功耗:2W 电源指示:P1、P2,接口灯指示:LINK、FXD |
| 机械结构 |
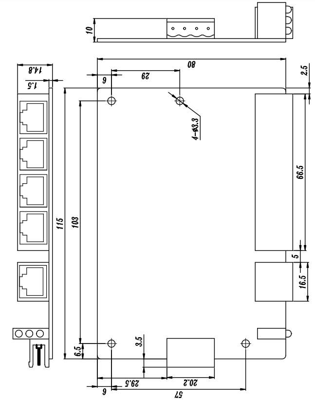
安装方式:定位孔安装 散热方式:自然冷却,无风扇 外形尺寸:(高×宽×深):115mm×15mm×80mm |
| 工作环境 |
工作温度:-40℃~+75℃ 存储温度:-40℃~+85℃ 相对湿度:5%~95%无凝露 |
| 质保 |
MTBF:350000小时 质保期:5年 |
| EMC |
EMI: CFR47FCC Part 15B CE EN55032:2015 EN61000-3-2:2014(电源谐波) EN61000-3-3:2013(电源变动) |
|
EMS: IEC61000-4-2(ESD) ±8kV(contact)±15kV(air) IEC61000-4-3(RS) 10V/m(80MHz~2GHz) IEC61000-4-4(EFT) Power Port:±4kV;Data Port:±2kV IEC61000-4-5(Surge) Power Port:±2kV/DM±4kV/CM;Data Port:±2kV IEC61000-4-6(CS) 3V(10kHz~150kHz);10V(150kHz~80MHz) IEC61000-4-16(共模传导) 30V(cont.)300V(1s) |
|
| 符合标准 |
IEEE802.3:CSMA/CD
IEEE802.3i:10ba
IEEE802.3u:100ba
IEEE802.3ab:1000ba
IEEE802.3z:1000ba
IEEE802.3x:全双工以太网数据链路层流控
机械 IEC60068-2-6(振动) IEC60068-2-27(冲击) IEC60068-2-32(自由跌落) |

| 产品型号 | 输出接口 | XX:光纤接口 | 电源 |
| KLM5505G-CN-PCB |
嵌入式裸板5×10/100/1000ba |
N/A | DC12-36V 冗余输入 |
| 名称 |
|---|